Commercial

Exclusive West Side
Retail & Office Space

W68 by Westland Living is an exceptional opportunity to acquire brand new West Side Vancouver commercial real estate assets.

W68

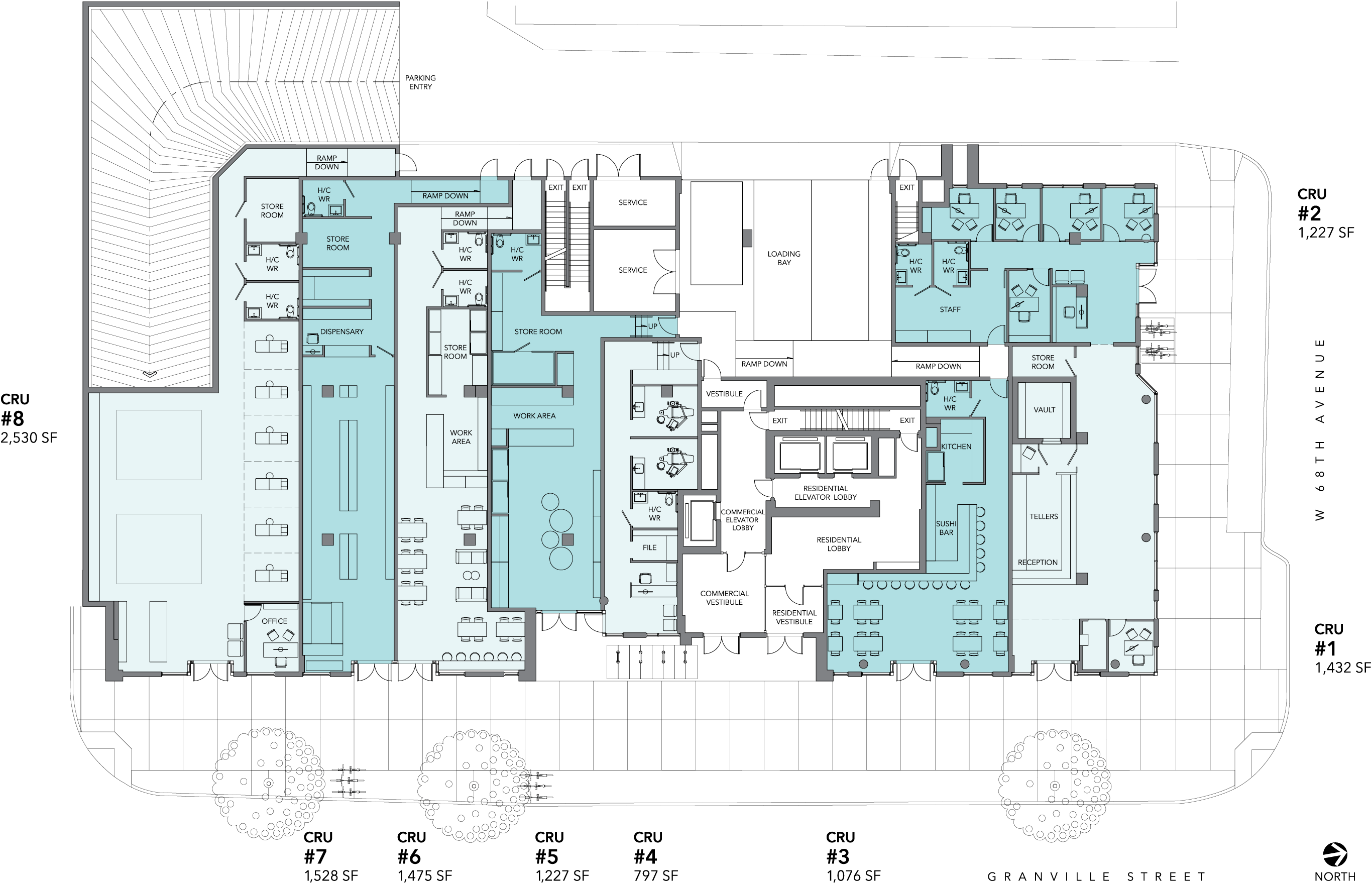
Located on the corner of Granville Street and West 68th Avenue, this southern pocket of Granville Street is a serene and well-established residential neighbourhood. The development is a collection of 64 residential units, 10 office units, and eight retail units.

W68 Retail

Prime West Side

Retail Spaces

This southern pocket of Granville Street is a serene and well-established residential neighbourhood with exceptional exposure to vehicular and pedestrian traffic. Numerous bus routes operate along Granville Street, with routes 010, 016, and 100 available for passengers travelling northbound and the 010, 016 available for southbound travellers.

W68 Retail
W68 Office

West Side

Office Spaces

Located on the south end of Granville Street, the property is conveniently accessible from all other areas of Vancouver and is just minutes from Richmond, the Vancouver International Airport, Marine Gateway, and the Marine Drive Canada Line Station.

The neighbourhood has a plethora of amenities for those who live and work in the area, including national and local retailers, restaurants, cafes, golf courses, waterfront trails and community parks.

W68 Office

Register Today

Register below to be part of Westland Living’s priority registrants where you will be amongst the first to receive information about W68 Commercial.

How did you hear about us?How did you hear about us?
 
Direct Mailer
Online Advertisement
Print Ad/Mail
Radio
Realtor
Signage/Walk by/Drive by
Word of Mouth
What are you interested in?What are you interested in?
 
Retail
Office
Are you a Realtor?*Are you a Realtor?*
 
Yes
No

Commercial Inquiries

*Personal Real Estate Corporation

Leasing Opportunities

Jason Lai PREC*

jlai@rennie.com
778.996.1788

Amber Wang PREC*

awang@rennie.com
604.723.1071

*Personal Real Estate Corporation